Помещение свободного назначения

Респ Башкортостан, г Салават, ул Островского, , д. 13

59 070 руб.

?

$ 1 086

€ 979

1 100 руб./м²


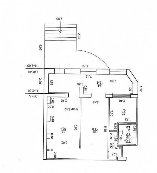
53.7 м²

1/3 этажей

Код объекта

128970

Предложение доступно для субагентов, авторизуйтесь

Помещение свободного назначения

Код объекта: 128970.
Тип объекта: Помещение свободного назначения.
Площадь: 53.7 м².
Этаж / Этажность: 1 / 3.

Описание и характеристики

От собственника! Без комиссии!

Характеристики:
- 1 линия
- Отдельная входная группа
- Общая парковка
- Есть возможность разместить вывеску
- Доступ 24/7
- ХВС/ГВС
- Свой санузел
- Центральное отопление
- Есть кондиционер
- Максимальная мощность 15 кВт
- Хороший ремонт
- Стрит ритейл
- Без лифта
- С окнами
- Возможность перепланировки
- Коммунальные услуги оплачиваются отдельно

Дополнительная информация:
Предлагается в аренду помещение с отличным потенциалом на красной линии!
Преимущества расположения:
Отдельный вход.
Интенсивный автомобильный и пешеходный трафик.
Превосходная видимость с тротуара и дороги.
Удобная транспортная доступность: всего 10 метров до остановки общественного транспорта.
Удобная парковка для клиентов и сотрудников.
Рекламные возможности:
Возможность размещения вывески и других рекламных материалов для привлечения внимания к вашему бизнесу.
Дополнительно:
Рассматривается возможность продажи помещения.
Коммерческие условия обсуждаются индивидуально.
Ищем надежного арендатора на длительный срок!

По всем вопросам можете обращаться к представителю собственника: Анастасия

Перейти в карточку объекта в CRM: 128970.

Шолпан

+7 917 044-88-89

или оставьте ваш номер, и я перезвоню в течение 30 минут

Отправляя заявку вы соглашаетесь на обработку персональных данных

59 070 руб.

?

$ 741

€ 631

1 100 руб./м²


53.7 м²

1/3 этажей

Код объекта

128970

Предложение доступно для субагентов, авторизуйтесь

Шолпан

+7 917 044-88-89

или оставьте ваш номер, и я перезвоню в течение 30 минут

Отправляя заявку вы соглашаетесь на обработку персональных данных

Похожие объявления

Посмотреть все похожие объявления
1/7
Код объекта: 291960.
Тип объекта: Помещение свободного назначения.
Площадь: 424 м².
Этаж / Этажность: 1 / 5.
1/6
Код объекта: 296607.
Тип объекта: Помещение свободного назначения.
Площадь: 155 м².
Этаж / Этажность: -1 / 5.
1/11
Код объекта: 307003.
Тип объекта: Помещение свободного назначения.
Площадь: 134 м².
Этаж / Этажность: 2 / 2.
1/7
Код объекта: 308258.
Тип объекта: Помещение свободного назначения.
Площадь: 58 м².
Этаж / Этажность: 1 / 9.
1/5
Код объекта: 335730.
Тип объекта: Помещение свободного назначения.
Площадь: 25 м².
Этаж / Этажность: 1 / 1.
1/7
Код объекта: 308258.
Тип объекта: Помещение свободного назначения.
Площадь: 58 м².
Этаж / Этажность: 1 / 9.
1/9
Код объекта: 316147.
Тип объекта: Помещение свободного назначения.
Площадь: 44.1 м².
Этаж / Этажность: 2 / 2.
1/7
Код объекта: 316151.
Тип объекта: Помещение свободного назначения.
Площадь: 45 м².
Этаж / Этажность: 2 / 2.
1/8
Код объекта: 316152.
Тип объекта: Помещение свободного назначения.
Площадь: 68.6 м².
Этаж / Этажность: 2 / 2.
1/14
Код объекта: 340152.
Тип объекта: Помещение свободного назначения.
Площадь: 50 м².
Этаж / Этажность: 1 / 9.
1/7
Код объекта: 291960.
Тип объекта: Помещение свободного назначения.
Площадь: 424 м².
Этаж / Этажность: 1 / 5.
1/22
Код объекта: 292552.
Тип объекта: Отдельно стоящее здание.
Площадь: 387.1 м².
Этаж / Этажность: 2 / 2.
1/6
Код объекта: 295289.
Тип объекта: Торговое помещение.
Площадь: 240 м².
Этаж / Этажность: 2 / 2.
1/7
Код объекта: 296154.
Тип объекта: Отдельно стоящее здание.
Площадь: 69.46 м².
Этаж / Этажность: 1 / 1.
1/16
Код объекта: 296503.
Тип объекта: Отдельно стоящее здание.
Площадь: 790 м².
Этаж / Этажность: 2 / 2.

Не хочу искать, перезвоните мне!

Оставьте номер телефона, наш специалист свяжется с вами и поможет с подбором недвижимости!