офисное помещение со своей стоянкой

ул Худайбердина, д. 87

332 700 руб.

?

$ 1 086

€ 979

1 500 руб./м²


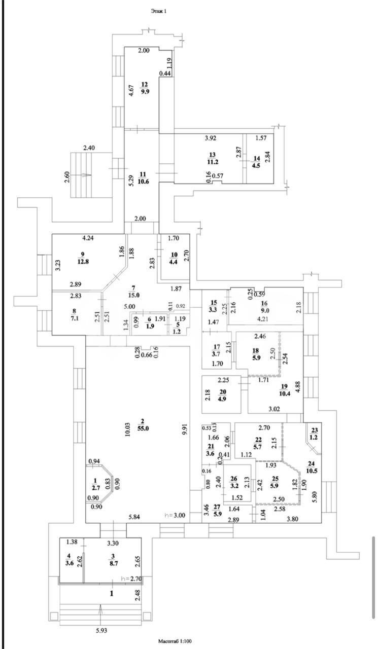
221.8 м²

1/9 этажей

Код объекта

126730

Предложение доступно для субагентов, авторизуйтесь

Офисное помещение со своей стоянкой

Код объекта: 126730.
Тип объекта: Офисное помещение.
Площадь: 221.8 м².
Этаж / Этажность: 1 / 9.

Описание и характеристики

От собственника! Без комиссии!

Характеристики:
- 1 линия
- Отдельная входная группа
- Своя парковка
- Доступ 24/7
- ХВС/ГВС
- Свой санузел
- Центральное отопление
- Есть кондиционер
- Хороший ремонт
- Кабинетная планировка
- Жилой дом
- Без лифта
- Высота потолков 3 м
- Видеонаблюдение
- Без мебели
- С окнами
- Инфраструктура: Кафе/столовые, Магазины, Банки
- Коммунальные услуги оплачиваются отдельно

Дополнительная информация:
Бывшее помещение банка Газпромбанк, имеется возможность разделить помещение на две части, второе крыльцо имеет выход на межрайбазу.

По всем вопросам можете обращаться к представителю собственника: Альберт Мустакимов

Перейти в карточку объекта в CRM: 126730.

Шолпан

+7 917 044-88-89

или оставьте ваш номер, и я перезвоню в течение 30 минут

Отправляя заявку вы соглашаетесь на обработку персональных данных

332 700 руб.

?

$ 4 282

€ 3 683

1 500 руб./м²


221.8 м²

1/9 этажей

Код объекта

126730

Предложение доступно для субагентов, авторизуйтесь

Шолпан

+7 917 044-88-89

или оставьте ваш номер, и я перезвоню в течение 30 минут

Отправляя заявку вы соглашаетесь на обработку персональных данных

Похожие объявления

Посмотреть все похожие объявления
1/5
Код объекта: 292062.
Тип объекта: Офисное помещение.
Площадь: 184 м².
Этаж / Этажность: 1 / 5.
1/1
Код объекта: 339845.
Тип объекта: Офисное помещение.
Площадь: 205 м².
Этаж / Этажность: 1 / 9.
1/7
Код объекта: 291960.
Тип объекта: Помещение свободного назначения.
Площадь: 424 м².
Этаж / Этажность: 1 / 5.
1/5
Код объекта: 292062.
Тип объекта: Офисное помещение.
Площадь: 184 м².
Этаж / Этажность: 1 / 5.
1/22
Код объекта: 292552.
Тип объекта: Отдельно стоящее здание.
Площадь: 387.1 м².
Этаж / Этажность: 2 / 2.
1/6
Код объекта: 295289.
Тип объекта: Торговое помещение.
Площадь: 240 м².
Этаж / Этажность: 2 / 2.
1/7
Код объекта: 296154.
Тип объекта: Отдельно стоящее здание.
Площадь: 69.46 м².
Этаж / Этажность: 1 / 1.

Не хочу искать, перезвоните мне!

Оставьте номер телефона, наш специалист свяжется с вами и поможет с подбором недвижимости!